Accueil Agence Contact Publications Expositions



Boulodrome du Douaisis

Lieu Sin-le-Noble, Nord
Maître d’ouvrage Douaisis Agglomération
Architecte mandataire et paysage Nicolas C. Guillot
Assistants
Cédric Bonhomme, Jérôme Randy
Concours 2020 Livraison 2022 Surface du terrain 30 508 m² Surface utile 8 010 m² Coût des travaux 9 300 000 € HT
Bureaux d’études TCE TPF ingénierie
OPC Cicanord

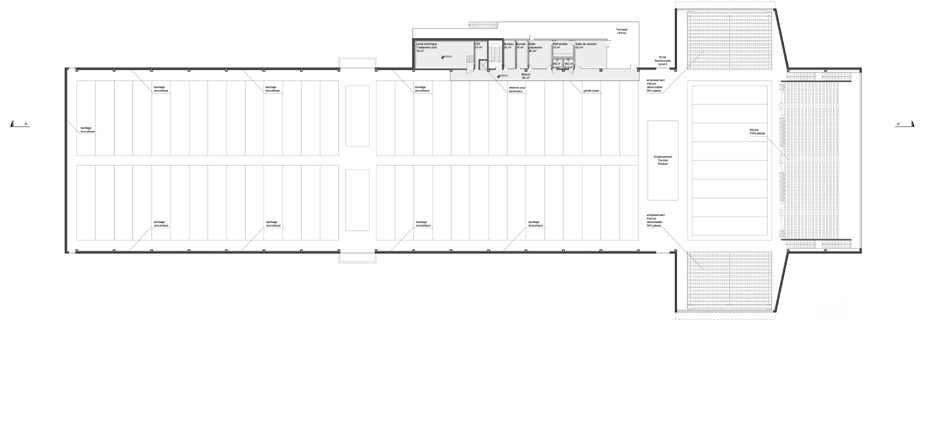
Le boulodrome du DOUAISIS, le plus grand d’Europe, est un haut lieu de sport au contact de la nature, sur le bord d’un parc. Sa dimension exceptionnelle de plus de 170m de long se démarque à la fois par une hauteur mesurée, par son bardage en bois, par ses ailes qui ressortent et par sa tête relevée qui abritent le point focal de la compétition : les terrains d’honneur entourés de 2000 places en tribune. L’aménagement paysagé alterne les espaces « réglés » et tramés et les espaces plus « libres » plantés.

Programme : 64 jeux couverts, tribune fixe de 1000 places, 2 tribunes démontables de 500 places, espace de convivialité, locaux administratifs et de réunion, locaux de rangement, locaux techniques, 128 jeux extérieurs, aménagements paysagers, stationnement.

Démarche Qualité Environnementale : Matériaux biosourcés, structure bois en façade et en charpente sur soubassement béton, façades bois, habillages intérieurs bois, Energies renouvelables avec panneaux photovoltaïques en autoconsommation, récupération des eaux pluviales pour les sanitaires et l’arrosage des terrains de jeu.
Performance thermique : RT 2012
Principaux matériaux : Béton, bois massif et lamellé collé, bardage en peuplier rétifié, isolant laine minérale.

Entreprises : GO : RAMERY Charpente : CMBP, VRD : EJL, Clôture : LEMOINE, Couverture et bardage : NORD France COUVERTURE, CVC Plomberie : MIROUX, CFO CFA : SPIE, Métallerie : SAM NORD